Aufenthaltswagen Bauwagen mieten
- 
    87435 Kempten (Allgäu)Wo suchen Sie?
- Lieferung und Abholung möglich
Preise pro Miettag
| Mietzeitraum | Preis inkl. 19%MwSt. | Preis netto | 
|---|---|---|
| Tagespreis auf Anfrage | ||
| Wochenpreis auf Anfrage | ||
| Monatspreis auf Anfrage | 
      Haben Sie Interesse am Kauf dieser Maschine aus unserem Mietpark?
    
    Unverbindliche Kaufanfrage
Für: Aufenthaltswagen Bauwagen
                Mit dem Absenden des Formulars erklären Sie sich damit einverstanden, dass diese Daten an den Verkäufer übermittelt werden, damit Ihre Kontaktanfrage bearbeitet werden kann. Weitere Informationen finden Sie in unserer Datenschutzerklärung.
              
            
            Beschreibung & technische Daten
            
          
          Details
Bauwagen - Aufenthaltswagen gibt es vielfältige Einsatzmöglichkeiten wie z.B. abgelegene Baustellen bei schlechten Wetterverhältnissen.
Durch die einfache Transportmöglichkeit kommen im Besonders auch Wanderbaustellen im Straßenbau, im Leitungsbau oder bei Forstarbeiten in Frage.
Weitere Infos erhalten Sie per Telefon oder E-Mail.
Ausstattung
- 6 Kleiderhaken
- Heizung 750 W
- Indirekte Belüftung
- Beleuchtung
- Sicherungsautomat
- 2 Steckdosen
- Große Pinwand
- Regal
- 2 Fenster Dreh-Kippbar
- 4 Stützen
- 2 Radkeile
Optionale Ausstattung
- Stockbetten (ingesamt 4 Schlafstellen)
- oder 1 Tisch und 4 Stühle.
Inbetriebnahme
- Anhänger gegen kippen und weg rollen sichern (Stützen, Radkeil).
- Strom anschließen.
- Prüfen ob alle elektrischen Verbraucher funktionieren.
- Durch gelernten Elektriker prüfen lassen.
 (vom Kunden zu beachten!)
Anschlusswerte Aufenthaltswagen
- Strom 1 x CEE-Cara-STECKER 3 POLIG
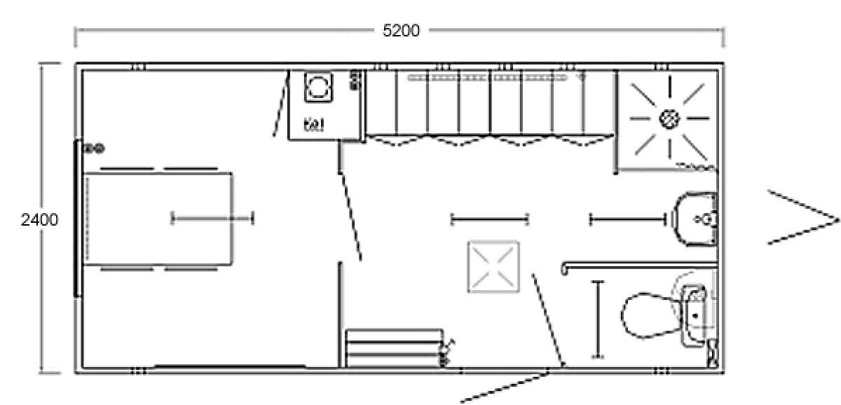
Grundriss
- Breite: 2,30 m
- Höhe: 2,90 m
- Länge o. Deichsel: 4,20 m
- Kugelkopfkupplung
- Anhängelast 1000 kg
- El. 13 polig ; 12 Volt
In der Nähe von: Kempten (Allgäu), Pfronten, Füssen, Sonthofen, Oberstorf, Oberstaufen, Isny im Allgäu, Leutkirch im Allgäu, Marktoberdorf, Kaufbeuren
Rental-Portal Produkt-ID: 3483899
Technische Daten
| Hersteller | Sanita | 
| Modell | Aufenthaltswagen | 
Unverbindliche Anfrage senden
  Vermieter: Sanita GmbH WC Mietservice 
    
          
      Mietpark Standort: 87435 Kempten (Allgäu)
      | Bayern
      
          
 
               
    
   
           
           
           
           
           
           
           
           
             
             
             
             
             
             
             
            