Toilettenwagen groß Baden-Württemberg Gamo Heilbronn mieten

  • Auslieferung nach Absprache mit Vermieter möglich: 74564 Crailsheim
    Mietpark Standort: 73655 Plüdershausen

    Wo suchen Sie?

    DE
  • Lieferung und Abholung möglich

Preise pro Miettag

Mietzeitraum Preis inkl. 19%MwSt. Preis netto
Tagespreis auf Anfrage
Wochenpreis auf Anfrage
Monatspreis auf Anfrage
Beschreibung & technische Daten

Details

Für öffentliche oder besondere Veranstaltungen, wie z.B. Straßenfeste oder Hochzeiten im Freien, können Sie bei uns bestens ausgestattete Toilettenwagen mit getrennten Bereichen mieten.

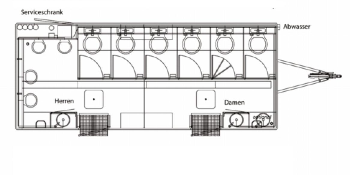
Ausstattung Toilettenwagen

  • Indirekte Belüftung je Abteil
  • Erstausstattung komplett mit Handtuchspender, Seife, Jumborollen Toilettenpapier, Spiegel, Toilettenbürsten
  • Alle elektrischen Verbraucher in Zentraleinheit separat schaltbar
  • Urinalspülung separat einstellbar
  • Materialkasten mit Reservebestückung (nicht im Mietpreis enthalten) separat abschließbar.

Damenabteil

  • 4 Toilettenkabinen mit großen Türen, Toilettenpapier
  • 1 Waschbecken mit Kristallspiegel, Seifenspender, Handtuchspender, Abfalleimer.

Herrenabteil

  • 1 Toilettenkabine mit großen Türen, Toilettenpapier
  • 4 Separaten Urinalen mit automatischer Spülung, Hygienebox
  • 1 Waschbecken mit Kristallspiegel, Seifenspender, Handtuchspender, Abfalleimer.

Technische Daten

  • Anhängelast: 1800 kg
  • Kugelkopfkupplung 12 V - 13 pol.
  • Abstützung durch mechanische Spindeln
  • Maße ohne Deichsel ca.: Breite 2,4 m; Länge 4,9 m; Höhe 2,9 m (zzgl. Deichsel 1,4 m)
  • Wasser/Druck: GEKA / 2-4 Bar
  • Abwasserrohr: HT / DN 110 (Auslass Deichsel)
  • Strom: 2x 16/A 220V

In der Nähe von: Stuttgart, Waiblingen, Esslingen am Neckar, Schwäbisch Gmünd, Göppingen, Ludwigsburg, Reutlingen, Balingen, Schwäbisch Hall, Sindelfingen

Rental-Portal Produkt-ID: 3555828

Technische Daten

Betriebsgewicht 1800 Kg
Maße 4,9x2,4x2,9 (zzg. Deichsel 1,4m) LxWxH
Anschlussspannung 220 V
Hersteller Sanita
Modell Gamo
Haben Sie Interesse am Kauf dieser Maschine aus unserem Mietpark?

Unverbindliche Kaufanfrage

Für: Toilettenwagen groß Baden-Württemberg Gamo Heilbronn

Mit dem Absenden des Formulars erklären Sie sich damit einverstanden, dass diese Daten an den Verkäufer übermittelt werden, damit Ihre Kontaktanfrage bearbeitet werden kann. Weitere Informationen finden Sie in unserer Datenschutzerklärung.
▶ Vermieter direkt anrufen
Tel:
Damit Sie eine erstklassige Beratung erhalten, erwähnen Sie bitte Rental Portal im Gespräch.
Jetzt Vermieter anrufen
Tel:
Damit Sie eine erstklassige Beratung erhalten, erwähnen Sie bitte Rental Portal im Gespräch.

Unverbindliche Anfrage senden

Vermieter: Sanita GmbH WC Mietservice
Mietpark Standort: 73655 Plüdershausen | Baden-Württemberg DE
▶ Miet-Anfrage senden
Jetzt anfragen
▶ Vermieter direkt anrufen
Tel:
Damit Sie eine erstklassige Beratung erhalten, erwähnen Sie bitte Rental Portal im Gespräch.
Jetzt Vermieter anrufen
Tel:
Damit Sie eine erstklassige Beratung erhalten, erwähnen Sie bitte Rental Portal im Gespräch.

Vermieter Standort